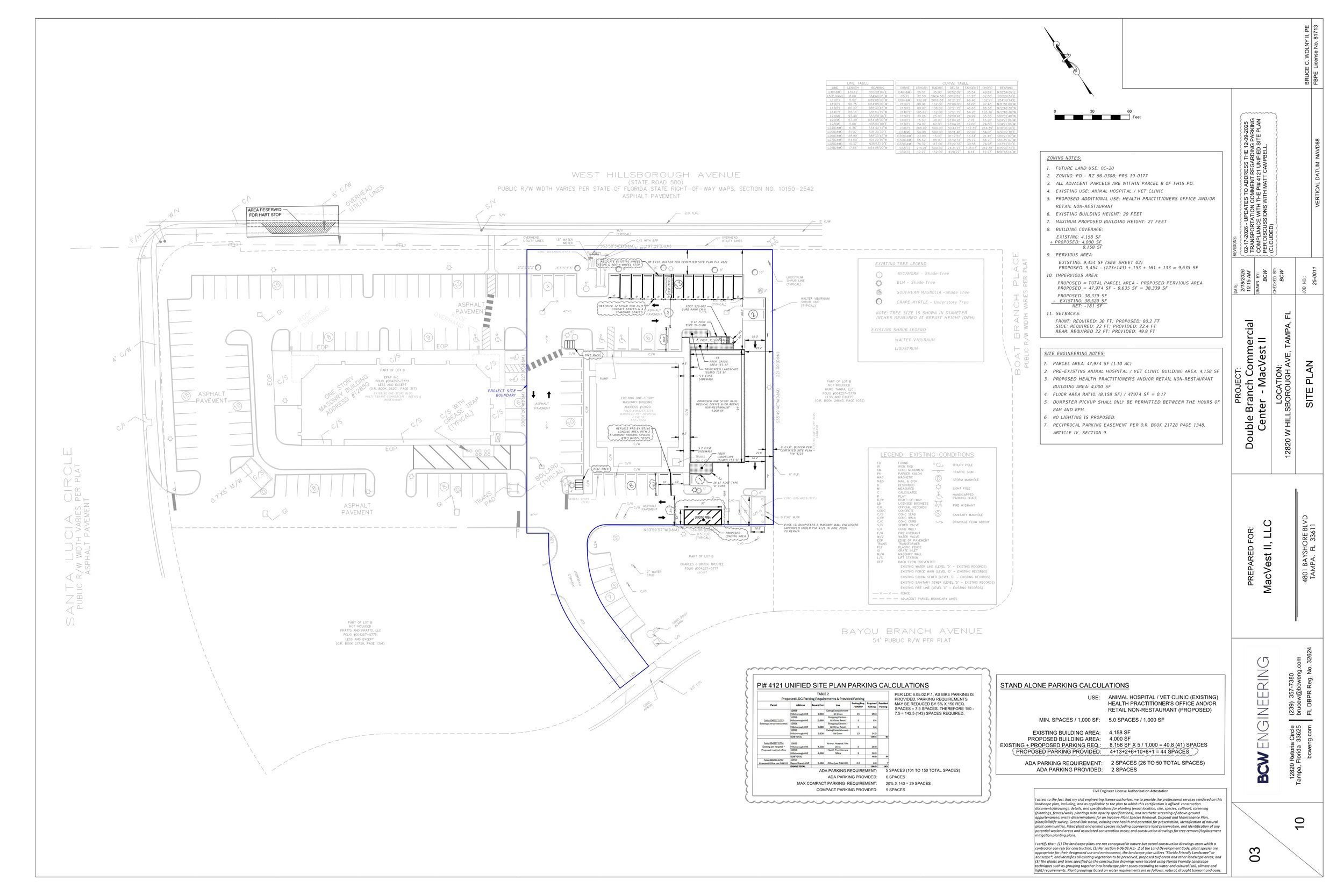
Double Branch Commercial Center - Building Addition

Location: Tampa, FL - Google Maps

Client: MacVest II, LLC (2025)

BCW Engineering developed site development construction plans and prepared a minor site permit application package to support the addition of a 4,000 square foot medical office building to the Double Branch Commercial Center development in Tampa, Florida.